Портальные системы HAUTAU
06.10.2014
ПАРАЛЛЕЛЬНО-СДВИЖНАЯ ФУРНИТУРА HAUTAU HKS 130
| Фурнитура HAUTAU предназначена для параллельно-сдвижных окон и дверей из пластика (ПВХ) и дерева с возможностью откидывания створки. При этом обеспечивается плотное запирание створки по всему периметру. Данную фурнитуру целесообразно использовать там, где надо застеклить большую площадь при минимуме свободного места и герметично изолировать одно помещение от другого или от улицы. |
Область применения:
- Ширина створки по фальцу FFB 600-1650 мм;
- Высота створки по фальцу FFH 800-2300 мм;
- Вес створки макс. 130 кг.
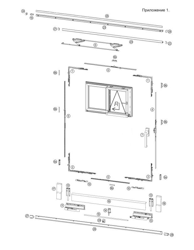
Параллельно-сдвижная фурнитура подразделяется на две составные части: элементы фурнитуры AUBI (в данном примере), либо другая, обеспечивающая запирание створки, и механизмы HAUTAU, осуществляющие сдвиг створки.
|
|
| Для сдвига створки используется специальная фурнитура производства фирмы HAUTAU:
|
Таблица 1
Ширина створки по фальцу FFB, мм | Цвет | |
Белый | Коричневый | |
600-900 | T12565 | T12735 |
901-1050 | T12732 | T12736 |
1051-1250 | T12733 | T12737 |
1251-1450 | T12734 | T12738 |
1451-1650 | T14825 | - |
- ножницы наклонного положения (8), позволяющие откидывать створку и поддерживающие ее при сдвиге. Они выбираются в зависимости от размера FFB (ширина створки по фальцу).
При ширине створки в диапазоне FFB 600–900 мм артикул ножниц - Т12563, FFB 901–1250 – Т12729 и FFB 1251-1650 – Т12730. - верхняя декоративная накладка (20) с торцевыми заглушками (21) и (22). Они выбираются также в зависимости от ширины створки (см. Таблицу 2).
Таблица 2
Ширина створки по фальцу FFB, мм | Цвет | |
Белый | Коричневый | |
600-900 | T12566 | T12741 |
901-1250 | T12739 | T12742 |
1251-1650 | T12740 | T12743 |
- ручка-рычаг (7) для работы с окном. Заказной артикул ручки белого цвета -Т16266,коричневого - Т16183.
УСТАНОВКА ФУРНИТУРЫ
1. Проверить точность изготовления рамы и створки. Фальцлюфт должен быть в пределах 12+/-1 мм.
2. Установить наклонно-поворотную фурнитуру на створке.
3. Створку отцентрировать на раме, установить ответные планки по меткам с учетом направления движения фурнитурных роликов.
Для установки фурнитуры HAUTAU используются следующие шаблоны:
- Т12828 110747 Шаблон центровки сверла (для верхней направляющей);
- Т12825 158267 Шаблон для кареток;
- Т12827 164741 Шаблон нижней направляющей;
- Т12826 110744 Шаблон верхней направляющей.
4. Монтаж фурнитуры на створке (см. Приложение 2):
4.1. Для сверления отверстий под установку передней и задней тележек в нижних углах створки используется шаблон 158267 (Шаблон для кареток). По нему сверлятся отверстия только с диаметром 3,0 и 5,0 мм.
4.2. Установить тележки и держатели для декоративной накладки (11), (12), (13) и (14).
4.3. Обрезать соединительную штангу (15). Длина штанги определяется метками на тележках.
4.4. Соединить тележки штангой и зафиксировать в закрытом положении тележек.
4.5. Обрезать в зависимости от ширины створки (FFB-8мм) верхнюю декоративную накладку (20) и закрепить ее на верхнем торце наплава створки. Установить ножницы наклона в паз этой накладки. При установке маркировка по центру ножниц совмещается с центром створки по ширине.
4.6. При ширине створки FFB больше 1250 мм используется фиксатор штанги.
5. Монтаж фурнитуры на раме (см. Приложение 3):
5.1. Обрезать нижнюю направляющую (26), по которой перемещаются тележки, в размер (две ширины створки по наплаву). С использованием шаблонов 164741 (Шаблон нижней направляющей) установить нижнюю шину на раме. При помощи шаблона осуществляется позиционирование шины на раме по высоте. Настройка шаблона производится в зависимости от величины нахлеста и фальцлюфта.
5.2. Верхняя ведущая шина - направляющая для перемещения ножниц наклона. Обрезается в размер (две ширины створки по наплаву минус 8 мм).
5.3. При помощи шаблонов 110744 (Шаблон верхней направляющей) установить направляющую на раму. При помощи 110747 (Шаблон центровки сверла) закрепить верхнюю направляющую шурупами на раме.
6. Установка створки в раму (см. Приложение 4, 5):
6.1. Перевести ручку-рычаг в положение сдвиг (ручка в горизонтальном положении).
6.2. Завести ролики тележек створки в нижнюю направляющую рамы. Створку вложить в раму, низ створки приподнять на величину раскрытия рычагов тележек. Створка займет косое положение. Раскрыть ножницы наклона и ввести скользящие элементы ножниц в верхнюю направляющую.
6.3. Сдвинуть створку в крайнее положение и установить упор (27), ограничивающий перемещение створки по горизонтали, в нижнюю направляющую. Окончательно зафиксировать упор в нужном положении для желаемого сдвига створки. Закрепить ограничитель (19) и торцевую заглушку (24) в верхней направляющей (см. Приложение 4).
6.4. Замок (28), обеспечивающий выход створки из рамы, установить на нижней направляющей и предварительно закрепить одним винтом. Затем сдвинуть створку, вложить ее в раму и выставить, ориентируясь по нахлесту, фальцлюфт 12 мм в горизонтальной плоскости. После этого окнчательно зафиксировать замок в нижней направляющей двумя винтами. Фальцлюфт в вертикальной плоскости при необходимости выставляется поворотом втулки тележки (см. Приложение 5).
6.5. Установка декоративных профилей и накладок осуществляется после окончательной регулировки.
Приложение 1 (Cостав фурнитуры для запирания створки )
Приложение 2 (Монтаж фурнитуры на створке)
Приложение 3 (Монтаж фурнитуры на раме)
Приложение 4 (Установка створки в раму)
Приложение 5 (Установка створки в раму)
НАШИ НОВОСТИ
C 8 МАРТА!!!
06.03.2026
О КомплектСервис
КОНТАКТЫ
- КОНТАКТНЫЙ ТЕЛЕФОН:
+7(495) 109-91-11,
+7 (968) 513-08-60 (отдел продаж) - E-MAIL:
- E-MAIL (для заявок):















